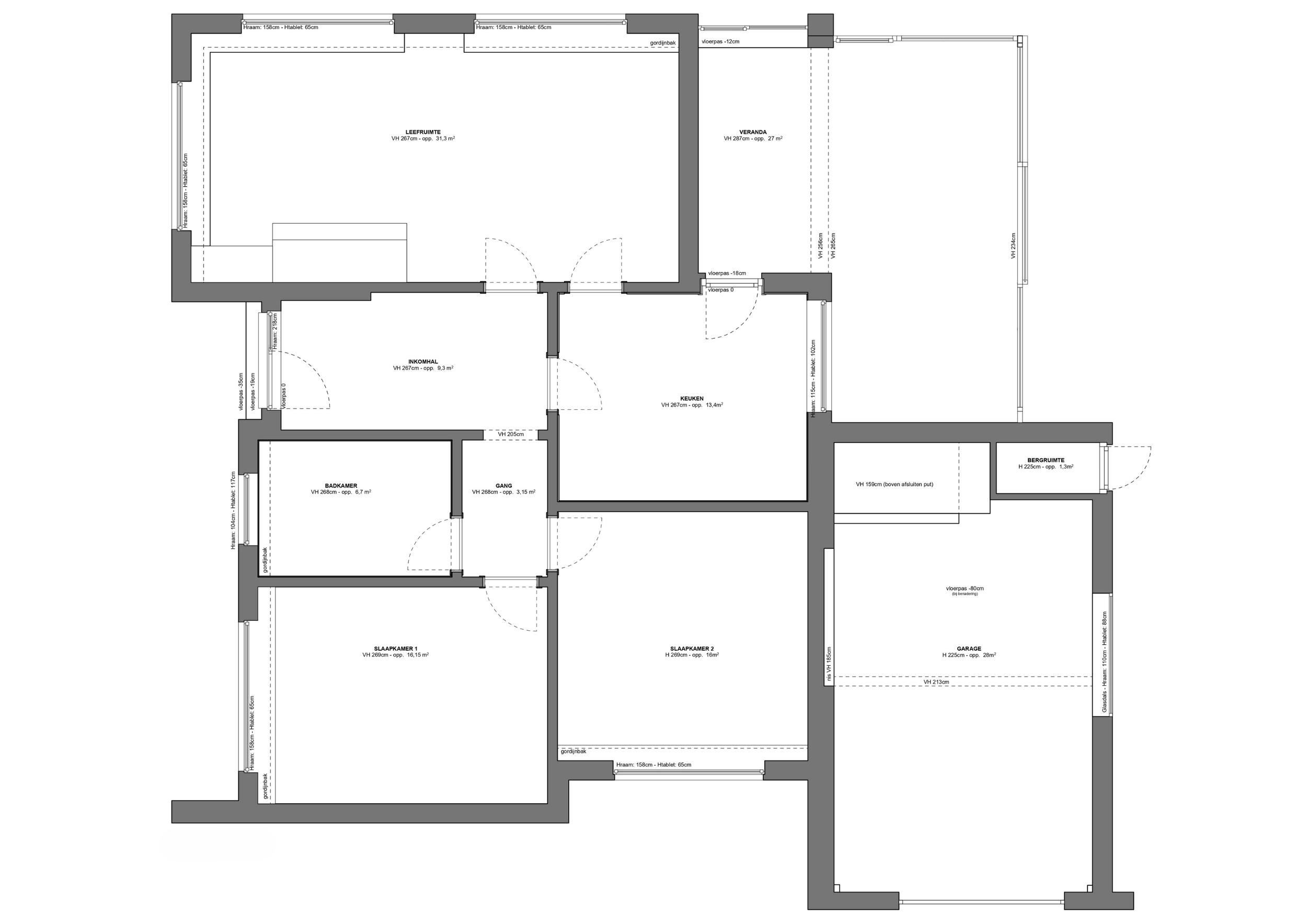
woning SLplanoptimalisatie volledige woning Dia 1 Dia 1 (huidige dia) Dia 2 Dia 2 (huidige dia) Dia 3 Dia 3 (huidige dia) Dia 4 Dia 4 (huidige dia) Dia 5 Dia 5 (huidige dia)